Projeto de Ar Condicionado
Contando com um departamento de engenharia especializada em projetos e montagens de sistemas de ar condicionado. A Eletrotec desenvolve projetos de sistemas de ar condicionado para conforto e processos industriais nas mais diversas atividades comerciais e industriais.
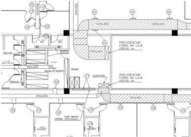
As etapas básicas de um projeto passam pela identificação das necessidades do cliente, dimensionamento do sistema, desenho técnico da situação pretendida, especificação de equipamentos, memorial descritivo, fluxograma da lógica operacional, etc.
Para o desenvolvimento dos projetos a Eletrotec utiliza ferramentas computacionais (softwares) de engenharia, dentre eles destacamos:
- carga térmica (ENERGY PLUS – método da ashrae).
- simulações energéticas de edificações (ENERGY PLUS).
- análises de distribuição de ar.
- sistemas de bombeamento.
A utilização de ferramentas de engenharia possibilita o desenvolvimento de um projeto adequado as necessidades do cliente, com economia de recursos (instalação) e de custos de operação ao longo da vida útil do projeto.
Entre os projetos já desenvolvidos destacam-se:
- Agências bancárias;
- Escritórios comerciais;
- Lojas;
- Restaurantes;
- Cozinhas Industriais;
- Laboratórios;
- Lavanderias industriais;
- Indústrias;
- Áreas de produção industrial;
- Áreas limpas (Indústria Farmacêutica, Ambientes Hospitalares);
